HOME
ILLUSTRATION
SCENIC DESIGN
ABOUT
HOME
ILLUSTRATION
SCENIC DESIGN
ABOUT
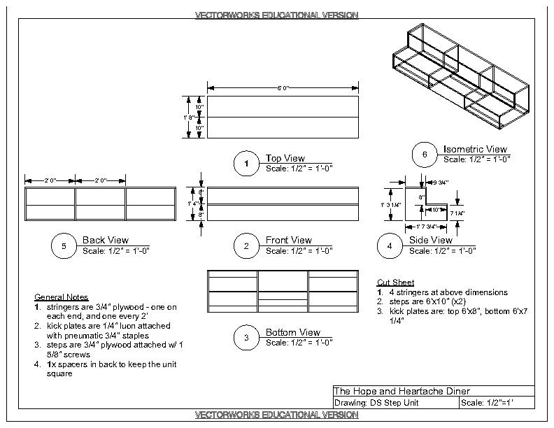
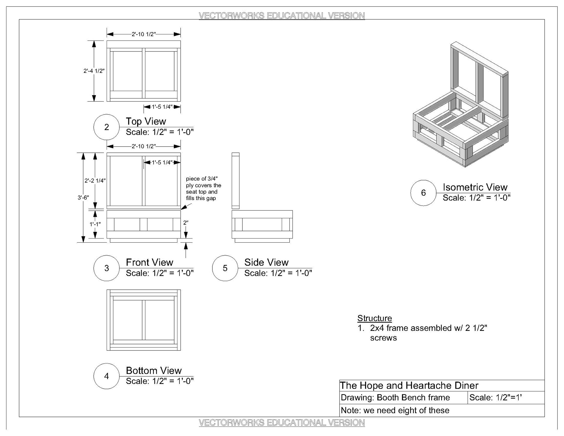
The Hope and Heartache Diner
scenic design (as well as technical direction) for Thousand Oaks High School's theatrical production of The Hope and Heartache Diner - rendering and draft samples done in Vectorworks