HOME
ILLUSTRATION
SCENIC DESIGN
ABOUT
HOME
ILLUSTRATION
SCENIC DESIGN
ABOUT
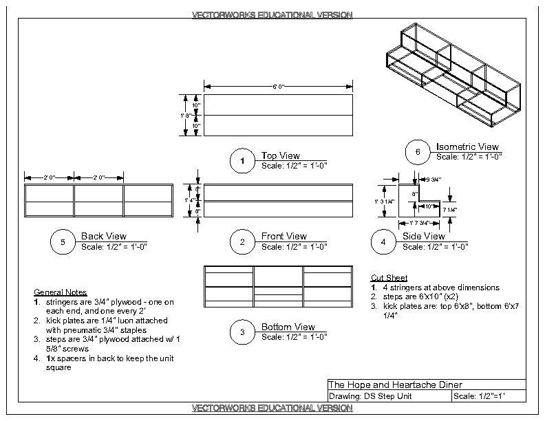
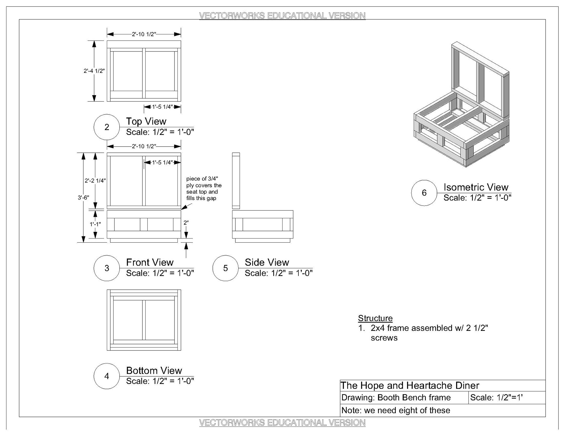
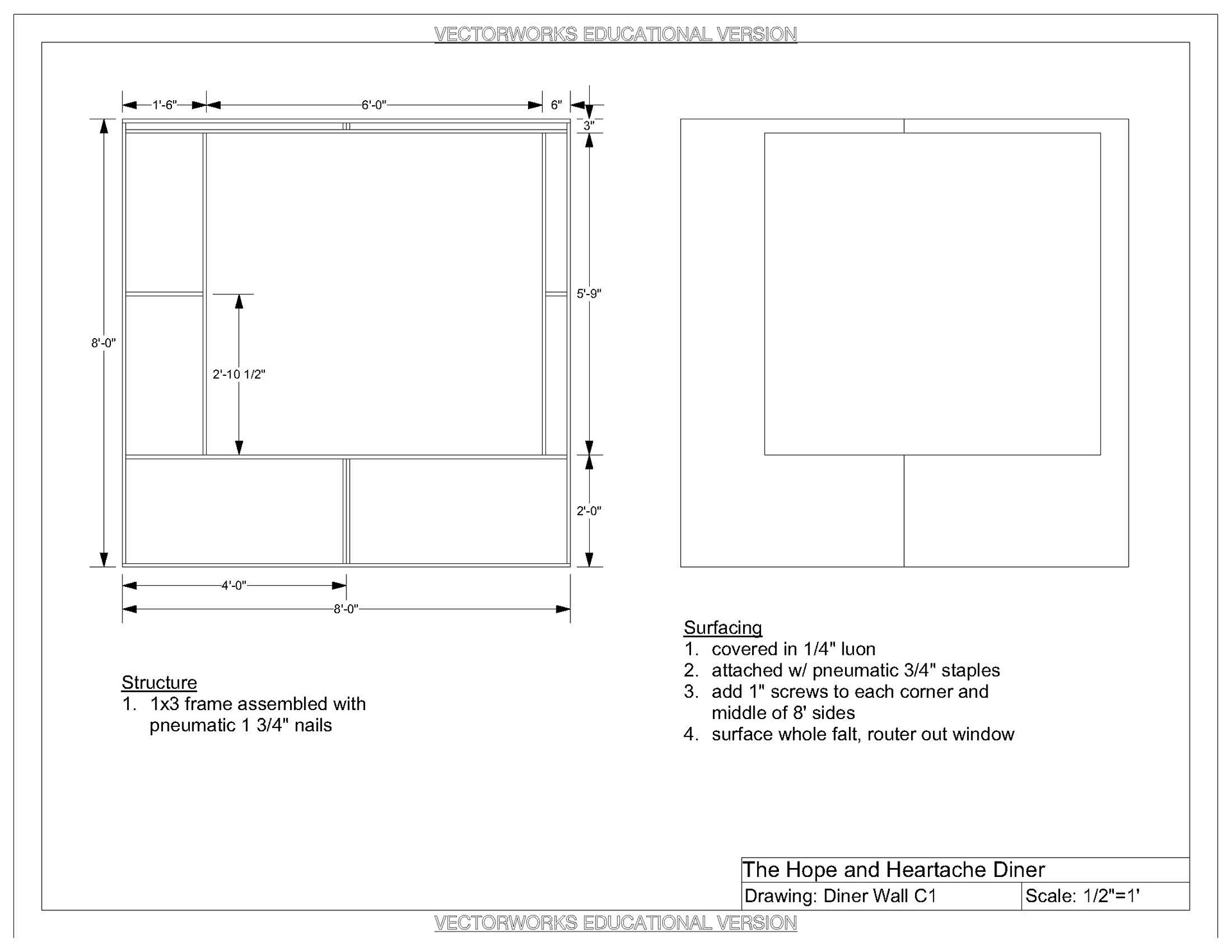
The Hope and Heartache Diner Scenic Design
scenic design for Thousand Oaks High School's theatrical production of The Hope and Heartache Diner - rendering and draft samples done in Vectorworks